Construction

Mobile Homes Corpus Christi
Affordable homes at your fingertips
Get started with Mobile Homes Corpus Christi
Find, design, and order your next home in a few clicks.
Dealer License #:
Enter your address or APN/TMS to check if this home fits on your property
Enter your property street address or APN/TMS
Interior
Mechanical
Kitchen
Exterior
Images of homes are solely for illustrative purposes and should not be relied upon. Images may not accurately represent the actual condition of a home as constructed, and may contain options which are not standard on all homes.
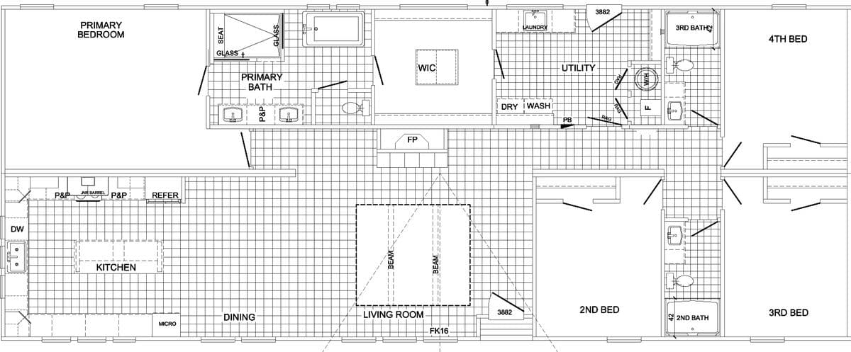
4 Bed | 3 Bath | 2,009 Sq. Ft. | 28' x 76'
4 Bed | 2 Bath | 2,176 Sq. Ft. | 32' x 68'
4 Bed | 2 Bath | 1,968 Sq. Ft. | 28' x 72'